La nueva escuela de la Arrabassada se adjudica a finales de año y se ejecutará en 22 meses
El presupuesto será de 5,6 MEUR, IVA incluido, y el nuevo centro estará dividido en educación infantil, primaria, área de gimnasio, administración y otros servicios

La nueva escuela del Arrabassada se adjudica a finales de año y se ejecutará en 22 meses
La reivindicación de la escuela de la Arrabassada, que lleva diez años en barracones luchando por un nuevo edificio, llegará a su fin en el 2019. Las obras del nuevo centro se adjudicarán a finales de año, y el plazo de ejecución será de 22 meses. La escuela se construirá en los terrenos ubicados entre la calle Mercè Rodoreda y el camino de la Ermita de la Salut, con un proyecto que tiene un presupuesto de 5.697.853,60 euros, IVA incluido.
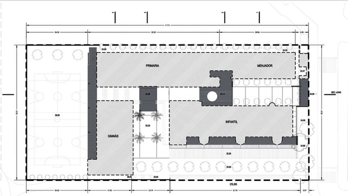
El parvulario será de una sola planta, con aulas relacionadas por un amplio pasillo. Todas se orientarán al suroeste, con apertura al patio exterior a través de un porche. El centro de primaria será de tres plantas y tendrá el aulario dispuesto asimétricamente a lo largo de un pasillo central. Se han previsto dos núcleos de comunicaciones verticales, uno de ellos en ascensor, ubicados próximos a los puntos de acceso de los alumnos, los cuales comunican todos los niveles de la escuela. Por otra parte, el gimnasio será un elemento independiente, situado perpendicular en las aulas.
Educación infantil dispondrá de una aula infantil, lavabos, aula de psicomotricidad, tutoría, almacén y lavabos para los maestros. La de educación primaria tendrá un aula principal, otra de desdoblamiento, otra de refuerzo, una específica, otra de informática y una complementaria. Además, dispondrá de biblioteca, almacén y lavabos. El gimnasio, por su parte, tendrá una sala grande, un escenario, el almacén y los vestuarios. El espacio de administración tendrá los despachos del director, jefe de estudios, secretaría y tutoría. Aparte, habrá una sala de profesores, lavabos, el AMPA y la conserjería. Por último, también habrá comedor, cocina y lavabos.
El acceso principal se situará en la calle Mercè Rodoreda, y la entrada en los diferentes edificios se hará a través de una rampa. El centro dispondrá de un espacio con pistas deportivas y vestuarios. Los patios de Parvulario y Primaria quedarán diferenciados, y tendrán una buena relación con el centro y su entorno más inmediato.
El concejal de Educación en el Ayuntamiento de Tarragona, Francesc Roca, valoraba muy positivamente este anuncio. Según Roca, la de la Arrabassada es una «zona en expansión, con gente joven y en crecimiento». Por este motivo, decía, «es cuestión de ir mirando y comentando cosas, de estar muy contentos, familias, comunidad educativa...». Por otra parte, expresaba que hay que hacer las cosas con «discreción». Según decía, «nos pusimos en el peor de los escenarios posibles porque planeamos la licitación de las obras para el año 2018, lo hemos conseguido avanzar un año». A partir de ahora, el papel del Ayuntamiento será el de «facilitar los trámites burocráticos y seguir trabajando con la Generalitat».
Por otra parte, Roca anunciaba que hasta que no se construya el nuevo edificio, se equipará la zona de los barracones. «Les instalaremos aire acondicionado porque, como mínimo, se le tendrán que pasar un verano más», acababa diciendo el concejal de Educación.

La nueva escuela del Arrebatamiento se adjudica a finales de año y se ejecutará en 22 meses

La nueva escuela del Arrebatamiento se adjudica a finales de año y se ejecutará en 22 meses